|  
 | 
    
        
           | 
         
        
          
            
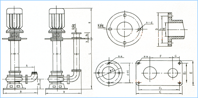
              YW液下式无堵塞污水泵安装尺寸表 | 
             
            
              | 点击次数:1408 发布时间:2014-11-30 | 
             
            
              |   | 
             
            
              YW液下式无堵塞污水泵安装尺寸表 
YW液下式无堵塞污水泵尺寸图 
  
YW液下式无堵塞污水泵安装尺寸表 
 
| DN | 
D1 | 
D | 
n-φd | 
B | 
H1 | 
L | 
h | 
H2 | 
H | 
A | 
C×E | 
C1×E1 | 
F | 
G | 
n-φa | 
φe | 
φe1 | 
  |  
| 50-20-7-0.75 | 
50 | 
110 | 
140 | 
4-φ14 | 
470 | 
180 | 
1~5 | 
14 | 
80 | 
400 | 
200 | 
500×320 | 
465×285 | 
225 | 
110 | 
4-φ14 | 
360 | 
325 |  
| 50-10-10-0.75 | 
50 | 
110 | 
140 | 
4-φ14 | 
340 | 
132 | 
1~5 | 
14 | 
80 | 
400 | 
200 | 
500×320 | 
465×285 | 
225 | 
110 | 
4-φ14 | 
360 | 
325 |  
| 50-20-15-1.5 | 
50 | 
110 | 
140 | 
4-φ14 | 
405 | 
135 | 
1~5 | 
14 | 
80 | 
415 | 
220 | 
500×360 | 
465×325 | 
245 | 
70 | 
4-φ14 | 
360 | 
325 |  
| 50-15-25-2.2 | 
50 | 
110 | 
140 | 
4-φ14 | 
470 | 
180 | 
1~5 | 
14 | 
80 | 
490 | 
260 | 
580×380 | 
540×340 | 
285 | 
88 | 
4-φ14 | 
380 | 
340 |  
| 50-18-30-3 | 
50 | 
110 | 
140 | 
4-φ14 | 
470 | 
180 | 
1~5 | 
14 | 
80 | 
510 | 
260 | 
580×380 | 
540×340 | 
285 | 
88 | 
4-φ14 | 
380 | 
340 |  
| 50-25-32-5.5 | 
50 | 
110 | 
140 | 
4-φ14 | 
470 | 
180 | 
1~5 | 
14 | 
80 | 
510 | 
260 | 
580×380 | 
540×340 | 
285 | 
88 | 
4-φ14 | 
380 | 
340 |  
| 50-20-40-7.5 | 
50 | 
110 | 
140 | 
4-φ14 | 
440 | 
143 | 
1~5 | 
14 | 
80 | 
415 | 
250 | 
550×360 | 
515×325 | 
285 | 
90 | 
4-φ14 | 
360 | 
325 |  
| 65-25-15-2.2 | 
65 | 
130 | 
160 | 
4-φ14 | 
440 | 
143 | 
1~5 | 
14 | 
80 | 
415 | 
250 | 
550×360 | 
515×325 | 
285 | 
95 | 
4-φ14 | 
360 | 
325 |  
| 65-37-13-3 | 
65 | 
130 | 
160 | 
4-φ14 | 
440 | 
143 | 
1~5 | 
14 | 
80 | 
490 | 
270 | 
550×360 | 
515×325 | 
285 | 
95 | 
4-φ14 | 
360 | 
325 |  
| 65-25-30-4 | 
65 | 
130 | 
160 | 
4-φ14 | 
505 | 
180 | 
1~5 | 
16 | 
80 | 
580 | 
290 | 
580×380 | 
540×340 | 
305 | 
88 | 
4-φ18 | 
380 | 
340 |  
| 65-30-40-7.5 | 
65 | 
130 | 
160 | 
4-φ14 | 
505 | 
180 | 
1~5 | 
16 | 
80 | 
580 | 
290 | 
580×380 | 
540×340 | 
305 | 
88 | 
4-φ14 | 
380 | 
340 |  
| 65-35-50-11 | 
65 | 
130 | 
160 | 
4-φ14 | 
470 | 
143 | 
1~5 | 
16 | 
80 | 
415 | 
285 | 
550×360 | 
515×325 | 
290 | 
95 | 
4-φ14 | 
380 | 
340 |  
| 65-35-60-15 | 
65 | 
130 | 
160 | 
4-φ14 | 
470 | 
143 | 
1~5 | 
14 | 
100 | 
415 | 
285 | 
550×360 | 
540×340 | 
290 | 
95 | 
4-φ18 | 
380 | 
340 |  
| 80-40-7-2.2 | 
80 | 
150 | 
190 | 
4-φ18 | 
470 | 
143 | 
1~5 | 
14 | 
100 | 
415 | 
285 | 
550×360 | 
515×325 | 
290 | 
95 | 
4-φ14 | 
360 | 
325 |  
| 80-43-13-3 | 
80 | 
150 | 
190 | 
4-φ18 | 
470 | 
143 | 
1~5 | 
14 | 
100 | 
510 | 
285 | 
550×360 | 
515×325 | 
290 | 
95 | 
4-φ14 | 
360 | 
325 |  
| 80-40-15-4 | 
80 | 
150 | 
190 | 
4-φ18 | 
470 | 
143 | 
1~5 | 
14 | 
100 | 
510 | 
285 | 
550×360 | 
515×325 | 
290 | 
95 | 
4-φ14 | 
360 | 
325 |  
| 80-65-25-7.5 | 
80 | 
150 | 
190 | 
4-φ18 | 
550 | 
180 | 
1~5 | 
14 | 
100 | 
510 | 
340 | 
620×380 | 
580×340 | 
345 | 
85 | 
4-φ14 | 
380 | 
340 |  
| 100-80-10-4 | 
100 | 
170 | 
210 | 
4-φ18 | 
550 | 
180 | 
1~7 | 
16 | 
100 | 
580 | 
410 | 
800×480 | 
760×440 | 
430 | 
120 | 
4-φ18 | 
480 | 
440 |  
| 100-110-10-5.5 | 
100 | 
170 | 
210 | 
4-φ18 | 
690 | 
185 | 
1~7 | 
16 | 
100 | 
580 | 
410 | 
800×480 | 
760×440 | 
430 | 
120 | 
4-φ18 | 
480 | 
440 |  
| 100-100-15-7.5 | 
100 | 
170 | 
210 | 
4-φ18 | 
690 | 
185 | 
1~7 | 
16 | 
100 | 
580 | 
410 | 
800×480 | 
760×440 | 
430 | 
120 | 
4-φ18 | 
480 | 
440 |  
| 100-85-20-7.5 | 
100 | 
170 | 
210 | 
4-φ18 | 
815 | 
230 | 
1~7 | 
18 | 
100 | 
790 | 
490 | 
900×560 | 
860×520 | 
510 | 
120 | 
4-φ18 | 
560 | 
520 |  
| 100-100-25-11 | 
100 | 
170 | 
210 | 
4-φ18 | 
690 | 
185 | 
1~7 | 
16 | 
100 | 
620 | 
410 | 
800×480 | 
760×440 | 
430 | 
120 | 
4-φ18 | 
480 | 
440 |  
| 100-100-30-15 | 
100 | 
170 | 
210 | 
4-φ18 | 
690 | 
185 | 
1~7 | 
16 | 
100 | 
620 | 
410 | 
800×480 | 
760×440 | 
430 | 
120 | 
4-φ18 | 
480 | 
440 |  
| 100-100-35-18.5 | 
100 | 
170 | 
210 | 
4-φ18 | 
815 | 
230 | 
1~7 | 
18 | 
100 | 
790 | 
490 | 
900×560 | 
860×520 | 
510 | 
120 | 
4-φ18 | 
560 | 
520 |  
| 150-145-9-7.5 | 
150 | 
225 | 
265 | 
8-φ18 | 
775 | 
215 | 
1~7 | 
16 | 
140 | 
620 | 
465 | 
850×360 | 
810×320 | 
495 | 
160 | 
4-φ18 | 
360 | 
320 |  
| 150-150-15-15 | 
150 | 
225 | 
265 | 
8-φ18 | 
770 | 
210 | 
1~7 | 
18 | 
140 | 
750 | 
465 | 
900×560 | 
860×520 | 
495 | 
125 | 
4-φ18 | 
560 | 
520 |  
| 150-150-20-18.5 | 
150 | 
225 | 
265 | 
8-φ18 | 
920 | 
270 | 
1~7 | 
20 | 
140 | 
810 | 
565 | 
1000×600 | 
950×550 | 
595 | 
125 | 
4-φ23 | 
600 | 
550 |  
| 150-150-25-22 | 
150 | 
225 | 
265 | 
8-φ18 | 
920 | 
270 | 
1~7 | 
20 | 
140 | 
850 | 
565 | 
1000×600 | 
950×550 | 
595 | 
125 | 
4-φ23 | 
600 | 
550 |  
| 150-130-30-22 | 
150 | 
225 | 
265 | 
8-φ18 | 
920 | 
270 | 
1~7 | 
20 | 
140 | 
850 | 
545 | 
1000×660 | 
950×550 | 
595 | 
125 | 
4-φ23 | 
660 | 
610 |  
| 150-150-30-30 | 
150 | 
225 | 
265 | 
8-φ18 | 
900 | 
290 | 
1~7 | 
20 | 
140 | 
850 | 
565 | 
1000×600 | 
950×610 | 
570 | 
125 | 
4-φ23 | 
600 | 
550 |  
| 150-200-30-37 | 
150 | 
225 | 
265 | 
8-φ18 | 
900 | 
290 | 
1~7 | 
20 | 
140 | 
850 | 
545 | 
1000×660 | 
950×610 | 
570 | 
125 | 
4-φ23 | 
660 | 
610 |  
| 200-300-7-11 | 
200 | 
295 | 
335 | 
8-φ18 | 
1010 | 
270 | 
1~7 | 
18 | 
200 | 
750 | 
580 | 
1150×650 | 
1150×600 | 
690 | 
150 | 
4-φ18 | 
650 | 
600 |  
| 200-250-11-15 | 
200 | 
295 | 
335 | 
8-φ18 | 
1010 | 
270 | 
1~7 | 
18 | 
200 | 
790 | 
580 | 
1150×550 | 
1100×500 | 
680 | 
180 | 
4-φ18 | 
550 | 
500 |  
| 200-400-10-22 | 
200 | 
295 | 
335 | 
8-φ18 | 
1000 | 
290 | 
1~7 | 
20 | 
200 | 
850 | 
580 | 
1150×550 | 
1100×500 | 
680 | 
180 | 
4-φ23 | 
550 | 
500 |  
| 200-400-13-30 | 
200 | 
295 | 
335 | 
8-φ18 | 
1000 | 
290 | 
1~7 | 
22 | 
200 | 
850 | 
580 | 
1150×550 | 
1100×500 | 
680 | 
180 | 
4-φ23 | 
550 | 
500 |  
| 200-250-15-18.5 | 
200 | 
295 | 
335 | 
8-φ18 | 
1010 | 
270 | 
1~7 | 
18 | 
200 | 
790 | 
580 | 
1150×550 | 
1100×500 | 
680 | 
180 | 
4-φ18 | 
550 | 
500 |  
| 200-300-15-22 | 
200 | 
295 | 
335 | 
8-φ18 | 
1045 | 
270 | 
1~7 | 
20 | 
200 | 
810 | 
590 | 
1150×650 | 
1100×600 | 
680 | 
180 | 
4-φ23 | 
650 | 
600 |  
| 200-250-22-30 | 
200 | 
295 | 
335 | 
8-φ18 | 
1045 | 
300 | 
1~7 | 
22 | 
200 | 
950 | 
590 | 
1150×650 | 
1100×600 | 
690 | 
150 | 
6-φ18 | 
650 | 
600 |  
| 200-350-25-37 | 
200 | 
295 | 
335 | 
8-φ18 | 
1150 | 
300 | 
1~7 | 
22 | 
200 | 
980 | 
630 | 
1400×700 | 
1350×650 | 
750 | 
180 | 
6-φ23 | 
700 | 
650 |  
| 200-400-30-55 | 
200 | 
295 | 
335 | 
8-φ18 | 
1150 | 
300 | 
1~7 | 
22 | 
200 | 
1005 | 
630 | 
1400×700 | 
1350×650 | 
750 | 
180 | 
6-φ23 | 
700 | 
650 |  
| 250-600-9-30 | 
250 | 
350 | 
390 | 
12-φ18 | 
1000 | 
290 | 
1~7 | 
22 | 
250 | 
950 | 
640 | 
1400×650 | 
1350×600 | 
750 | 
200 | 
6-φ23 | 
650 | 
600 |  
| 250-600-12-37 | 
250 | 
350 | 
390 | 
12-φ18 | 
1165 | 
300 | 
1~7 | 
22 | 
250 | 
980 | 
735 | 
1400×700 | 
1350×650 | 
800 | 
200 | 
6-φ23 | 
700 | 
650 |  
| 250-600-15-45 | 
250 | 
350 | 
390 | 
12-φ18 | 
1165 | 
300 | 
1~7 | 
22 | 
250 | 
1005 | 
735 | 
1400×700 | 
1350×650 | 
800 | 
200 | 
6-φ23 | 
700 | 
650 |  
| 250-600-20-55 | 
250 | 
350 | 
390 | 
12-φ18 | 
1165 | 
300 | 
1~7 | 
22 | 
250 | 
1005 | 
735 | 
1400×700 | 
1350×650 | 
800 | 
200 | 
6-φ23 | 
700 | 
650 |  
| 250-600-25-75 | 
250 | 
350 | 
390 | 
12-φ18 | 
1165 | 
300 | 
1~7 | 
22 | 
250 | 
1010 | 
750 | 
1400×700 | 
1350×650 | 
800 | 
200 | 
6-φ23 | 
700 | 
650 |   
  | 
             
            
              |   | 
             
           
            
           | 
         
      |